The SIT Punggol Campus sets the stage for the University’s growth to become a premier University of Applied Learning, recognised as Singapore’s University for Industry. Nestled within the vibrant Punggol Digital District, SIT’s co-location with industry and community will allow students, academia, industry and the public to intermingle seamlessly.

The new campus will be a hub for knowledge, collaboration, innovation and test-bedding. It boasts several Living Labs that enrich the authenticity of students' learning experiences and provide fertile ground for impactful applied research.

Looking ahead, SIT remains steadfast in its commitment to excellence, innovation and inclusivity. Punggol offers SIT the opportunity to closely integrate with the community, enhancing STEM outreach to inspire and nurture young students. The University aims to cultivate students who are grounded in the community to drive positive change.

Dedicated to pushing boundaries and embracing change, SIT continues to chart new frontiers in higher education and nurture the next generation of game changers.

Applied Learning

Learning opportunities everywhere

Designed to support diverse learning styles for specialised programmes, the University provides a dynamic environment catered for the digital era. Some facilities include a Library of the future, Superlabs, Lectorials and a Smart Playground.

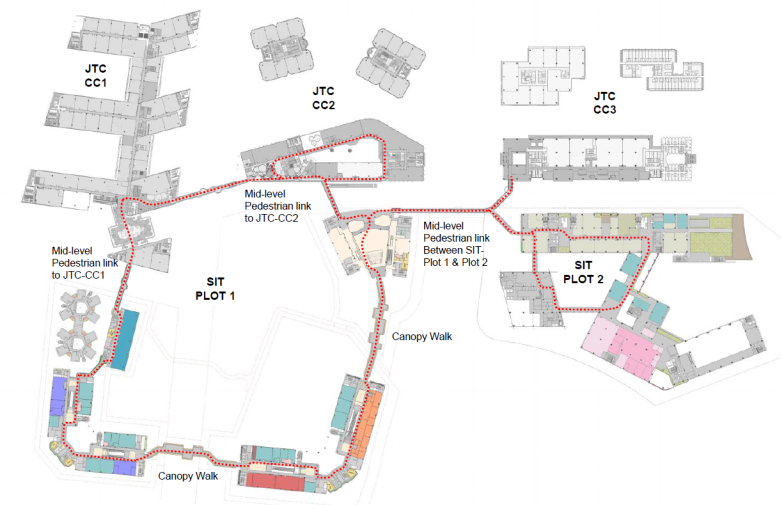
Industry Partnership

Visible industry collaboration

We are connected to JTC Corporation’s business park via Campus Boulevard and the elevated Collaboration Loop. Students and faculty can test-bed proofs-of-concept across the street, while industry partners innovate at W6 on campus.

SIT & JTC
SIT Foogle Food Court

Vibrant community

We welcome everyone

We are accessible to the public via the Punggol Coast MRT station and will have facilities for everyone to enjoy.

The public can explore the campus on foot or cycle down the main Campus Boulevard — an 800m-long walkway connecting the whole district. There is also the 1.3km green Heritage Trail, a forest conservation project along the old Punggol Road that now links Punggol Waterway Park to Punggol Promenade park connector.

Other facilities include dining and shopping options at the Market Village by the waterfront.

Accurate as of date of publication on August 17, 2024. 
Source: The Straits Times © SPH Media Limited. Permission required for reproduction.

Living Labs at SIT

Engage in authentic learning experiences with real-world systems

Students will engage in authentic learning experiences and problem-solving opportunities through the real-world systems in our Living Labs. Our collaborations with the industry and community to co-develop solutions via translational research and innovation, build impactful solutions and nurture talent will also add to the district’s buzz.

SIT Living Labs Initiatives

Learn More About